Tòa văn phòng dạng nhà ống được kiểu dáng cao 4 tầng trên 1 khu đất rộng to. Trước khi xây công trình này, mảnh đất chỉ là khoảng đất trống trồng cỏ lau, chuối và tre trúc.
Trên tổng thể tích sàn 350m2, tòa nhà được thiết kế và bố trí siêu linh hoạt mang những thể tích làm việc, không gian vui chơi giải trí cho nhân viên sau các giờ căn thẳng. gần như khu vực mặt tiền, trên mái và bên hông nhà đều được bao phủ bởi các "rèm cây xanh" tuyệt đẹp.
Điểm ấn tượng đặc trưng nữa của công trình này đó là tòa nhà được xây dựng bằng tường gạch mộc lạ mắt, bao quanh là bê tông và kính. Trần nhà được mẫu mã dạng gợn sóng đem đến cảm giác thân thuộc, tha hồ mà cực kỳ sắp gũi.

Hình dáng tòa nhà khá khác lạ mang cây xanh ngập tràn từ tầng 4 xuống tầng 4 xuống tầng 1.

Xung quanh là các khoảng đất trống xanh một màu của chuối, cỏ lau….

Mặt tiền trước nhà là 1 rèm cây dây leo rất đẹp mắt. Cây xanh nơi mặt tiền vừa mang tác dụng như giảm nhiệt độ, vừa mang ko khí trong lành cho toàn bộ dung tích bên trong.

Vật liệu chính tạo buộc phải công trình này chủ yếu bằng gạch lỗ nhẹ, bê tông và cửa kính. đầy đủ tường nhà chẳng phải được chát, sơn mà để hài hòa có cây xanh tạo cần nét độc đáo riêng cho công trình.

Với tiêu chí tạo ta một môi trường làm việc chất lượng cao, xanh, sạch và chi phí rẻ phải gần như vật liệu tạo buộc phải công trình đều là các vật liệu sẵn mang ở địa phương, dễ tìm.

Sự kết hợp kết hợp gữa cây xanh, bê tông thô và gạch mộc tạo bắt buộc nét độc đáo hiếm có cho công trình.

Những loại cây quen thuộc như cỏ lau,tre, nứa, chuối…mang đến cảm giác gần gũi, gợi nhớ tới cảnh làng quê xưa.

Không gian làm cho việc bên trong nhà thoáng mát và được mẫu mã hoàn toàn mở.

Một dung tích làm cho việc hợp lý mà bất cứ dân văn phòng nào cũng bắt buộc ao ước.

Với bề ngoài mở thông thoáng giúp tất cả đa số người sắp với nhau hơn.

Một góc làm cho việc nhóm thoáng sáng.

Không gian làm cho việc tràn ngập cây xanh cả trong và không tính.

Cầu thang dẫn lên tầng được kiểu dáng đơn giản mang bức tường cây xanh tuyệt đẹp.

Không chỉ với không gian làm cho việc thoáng sáng tòa nhà còn có khu vực dành để vui chơi giải trí cho nhân viên sau các giờ lao động căng thẳng.

Tầng 4 là diện tích của bếp ăn và phòng khách. Tầng trên cộng được ngoại hình đẹp mắt với gạch lỗ và vườn cây xanh mát.

Không gian xanh mát, trong lành, mát mẻ cũng giúp nâng cao cảm hứng làm việc cho các nhân viên.

Khu vườn tuyệt đẹp trên tầng 4.

Không gian tiếng khách tràn ngập nắng và cây xanh.

Với ngoại hình độc đáo, tạo cảm giác thư giãn, thoả thích làm cho đa số nhân viên luôn muốn khiến cho việc ở mọc nơi mọc khi.

Giữa một rừng mang những ngôi nhà thô cứng bằng bê tông cốt thép, công trình độc đáo này nổi lên như một "viên ngọc xanh" trong lành và mát mắt ngay giữa lòng thành phố nhộn nhịp.

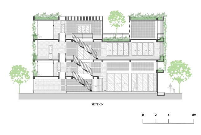
Sơ đồ mặt cắt của công trình.
Archdaily

ConversionConversion EmoticonEmoticon