Với lối sống đặc biệt của người Việt - ông bà, cha mẹ và con dòng cùng sinh sống chung dưới 1 mái nhà, công trình độc đáo này đã giải quyết được hoàn toàn các vấn đề cơ bản trong sinh hoạt cho 2 gia đình trẻ và một người già bằng bí quyết tạo ra 1 căn nhà to cất hai ngôi nhà nhỏ. Trong đó, có hẳn khoảng trống chung và riêng nhưng vẫn bảo đảm tính kết nối cho hầu hết các thành viên trong gia đình.
Lối vào chính là hình ảnh gợi lại "mái hiên" trong ngôi nhà truyền thống Việt Nam, nó như 1 khoảng đệm mang cây xanh và mặt nước. Phía cuối ngôi nhà còn với 1 khoảng vườn nhỏ uốn lượn là lối thông thiên giữa những diện tích trong nhà với nhau.

Ngôi nhà nhỏ vừa sở hữu nét độc đáo cổ kính của những ngôi nhà truyền thống Việt, vừa với nét tiên tiến năng động ưa thích sở hữu các người trẻ.

Lối chính vào nhà tuyệt đẹp với cây xanh và mặt nước trước hiên . Hệ cửa gỗ được thiết kế gấp sở hữu thể mở rộng tối đa để đón nắng gió vào nhà.

Không gian tiếp khách như 1 khoảng sân nhỏ bên trong, với cây xanh và ánh sáng luôn thay đổi là điểm nhấn thú vị cho khách lúc bước vào khoảng trống này.

Không gian bếp và bàn ăn được ngoại hình đẹp mắt. Bộ bàn ăn bằng gỗ tự nhiên rộng đủ để cho cả đại gia đình xum họp quây quần bên mâm cơm.

Nét độc đáo của ngôi nhà nằm ở phần mái ngói cũ được khiến cách đây hơn 50 năm trước. Mái nhà cũ này chính là trung tâm và là phần không gian chuyển tiếp giữa nét truyền thông có tiên tiến trong nhà.

Khu vườn nhỏ phía sau nhà là khoảng trống chung, lối đi thông thoáng cho hầu hết những thành viên trong nhà.

Một góc thư giãn tĩnh lặng với cây xanh và ánh sáng mặt trời.

Với lối ngoại hình đặc biệt tạo bắt buộc đông đảo các "khoảng trống" và khe lấy sáng, không gian bên trong nhà luôn luôn cảm nhận được thời tiết và bầu trời bên ko kể.

Tỷ lệ dung tích được cân đề cập tương đối kỹ, nhằm tạo độ tương phản thiết yếu giữa ánh sáng và bóng tối, giữa cũ và mới.


Phòng ngủ gọn gàng, thoáng sáng sở hữu phần mái uốn lượn cũng các lỗ tròn to nhỏ tạo bắt buộc những bông hoa nắng nhảy nhót khắp phòng.

Bức tường cũng được tạo những lỗ tròn tạo điểm nhấn phong cách cho người xem.


Cây xanh luôn là điểm nhấn thời trang, đem lại diện tích xanh mát suốt những tầng trong nhà.


Chiều cao của khoảng trống tương quan sở hữu những diện tích để mang lại cảm giác vừa nên và làm cho mọi người cảm thấy tha hồ sống bên trong.

Sơ đồ sắp xếp diện tích tầng 1.

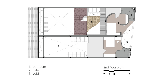
Sơ đồ xếp đặt không gian tầng 2.

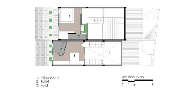
Sơ đồ xếp đặt diện tích tầng 3.

Sơ đồ mặt cắt công trình.
Theo Trí thức trẻ/Archdaily

ConversionConversion EmoticonEmoticon