Ngôi nhà đặc biệt này có tên gọi Nhà V3. Nó được bề ngoài khá độc đáo chẳng hề giống có bất kỳ ngôi nhà nào cộng khu phố. Bước vào bên trong con người sở hữu cảm giác như đang đi vào 1 hang động tĩnh lặng và yên bình, rời xa hẳn cuộc sống ồn ào bên không tính.
Nhà V3 là một diện tích vừa mới mẻ, nhưng lại cũng vô cùng thân quen xưa cũ. Đây thực sự là nơi trú ẩn yên bình cho các người thích sự yên tĩnh, nơi người ta với thể lấy lại cân bằng trong cuộc sống bằng các kỷ niệm.
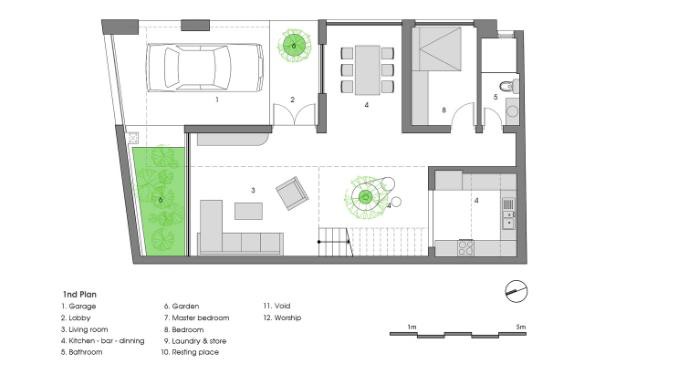
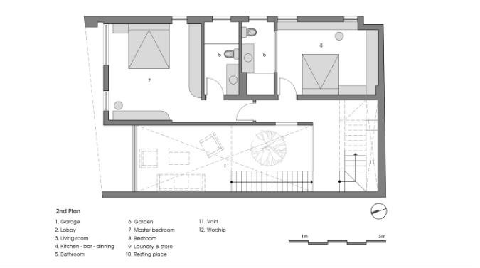
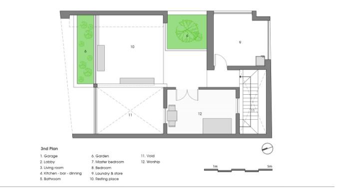
Trên tổng khoảng trống 133m2, ngôi nhà được bề ngoài 3 tầng sở hữu khoảng trống tầng 1 là phòng khách, bếp, bàn ăn, khu vệ sinh và một phòng ngủ rộng. Trên tầng 2,3 là không gian dành cho khu vực nghỉ ngơi và phòng thờ.

Ngôi nhà lôi kéo hầu hết ánh nhìn bởi hình dáng lạ mắt cùng lối bề ngoài độc đáo không giống với bất kỳ ngôi nhà nào trong khu phố.

Trên tổng không gian 133m2, ngôi nhà được kiểu dáng 3 tầng với khoảng trống tầng một là phòng khách, bếp, bàn ăn, khu vệ sinh và một phòng ngủ rộng. Trên tầng 2,3 là không gian dành cho khu vực nghỉ ngơi và phòng thờ.

Công trình sở hữu tên Nhà V3, với lối xây dựng kiểu thoáng đãng và nhiều. Bước vào bên trong ngôi nhà con người sở hữu cảm giác như đang đi vào 1 hang động tĩnh lặng và yên bình.

Hầu hết tất cả các bức tường trong ngôi nhà đặc biệt này đều được xây gạch thô tạo khoảng trống vừa mới mẻ, nhưng lại cực kỳ thân quen xưa cũ.

Từng góc nhỏ trong ngôi nhà này đều tạo cho con người với cảm giác như được sống hoàn toàn trong không gian thực sự yên bình, thư thái.

Đây thực sự là nơi trú ẩn yên bình cho những người thích sự tĩnh lặng, nơi người ta với thể lấy lại cân bằng trong cuộc sống bằng các kỷ niệm.

Dù nằm ngay ở thành phố Vinh, nhưng ngôi nhà này như một dấu lặng tách biệt hoàn toàn mang cuộc sống ồn ào bên ko kể.

Phần mặt tiền trước nhà được dành riêng 1 khoảng vườn nhỏ sở hữu số đông cây xanh tươi phải chăng.

Trên tầng 2 là diện tích dành cho nghỉ ngơi của chủ nhà. Nơi đây cũng được bề ngoài tương đối đặc thù và khéo léo mang một khoảng ban công toàn cây xanh.

Nhờ hệ cửa kính lớn mà nơi đây còn có vai trò như cửa sổ lớn với ánh sáng tới đa số ngõ ngách tầng 2.

Từ tầng 2 với thể dễ dàng nhìn xuống tầng 1 qua khoảng thông tầng từ phòng khách.

Cây xanh được trồng cả bên ngoại trừ và bên trong đem đến sự tươi mát và sức sống cho ngôi nhà.

Bức tường kính rộng cao sát trần giúp thể tích luôn tràn ngập ánh sáng.


Cây dây leo vươn cao phía ngoại trừ ngôi nhà.

Sơ đồ bố trí không gian tầng một.

Sơ đồ bố trí thể tích tầng 2.

Sơ đồ xếp đặt dung tích tầng 3.

Mặt đứng ngôi nhà.
Theo Trí thức trẻ/Archdaily

ConversionConversion EmoticonEmoticon